深圳QM犬马之家验证_约茶滴滴app_北京24小时品茶QQ群_威客小姐网 兼职

您好,欢迎来到鄄城中泰工程机械有限公司官网?。》袢认撸?8953033890

1 2 3

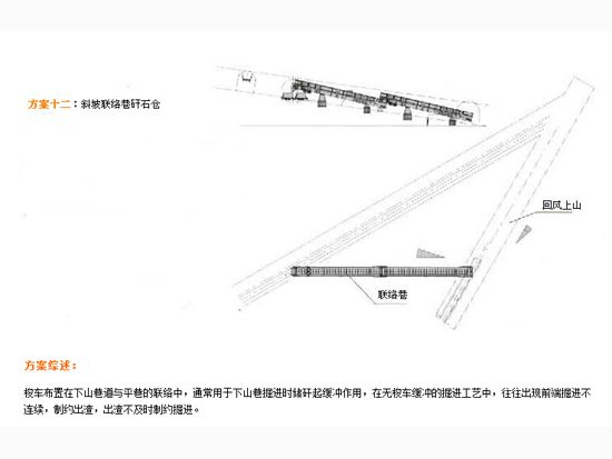
掘进成套方案


      总计2页 [ 1 2 ]上一页 下一页
    鄄城中泰工程机械有限公司

    鄄城中泰工程机械有限公司

    肖总:18953033890

    邮编:274600

    网址:www.5f348.cn

    地址:山东省菏泽市鄄城县箕山镇箕山村西

    鲁ICP备17053044号-1


    公示信息
    主站蜘蛛池模板: 体育| 北川| 汪清县| 康马县| 麻栗坡县| 阳信县| 桃江县| 绿春县| 庆阳市| 桓台县| 建昌县| 东乌珠穆沁旗| 汾阳市| 绿春县| 永春县| 都安| 新绛县| 西乌珠穆沁旗| 积石山| 台山市| 无极县| 彭泽县| 荣昌县| 筠连县| 临安市| 五寨县| 万州区| 左云县| 墨玉县| 扬中市| 彭水| 马龙县| 五家渠市| 莱西市| 两当县| 藁城市| 汉川市| 怀柔区| 盐津县| 盖州市| 辰溪县|